Masterpiece Heritage Villa***18 rooms//DOWNTOWN BUCHAREST
\ 23.000EUR
Masterpiece Heritage Villa***18 rooms//DOWNTOWN BUCHAREST
nr identificare: 1129303
Vezi harta
MADDAX Luxury Properties va propune spre inchiriere o vila de patrimoniu exclusivista, situata intr-o locatie de prestigiu din zona Centrala a Capitalei.
In proximitate regasim locuri vibrante, importante puncte de intalnire ale oamenilor de afaceri, ministere, ambasade, galerii de arta, teatre, cafenele, locatii culturale remarcabile, hoteluri de lux.
Cu o arhitectura distinsa, aceasta cladire ofera businessului dumneavoastra un capital de imagine impresionant.
Prin caracterul sau elegant, unic, vila se preteaza unei game variate de destinatii: sediu reprezentativ pentru o companie de prestigiu, ambasada sau resedinta diplomatica, spatiu cultural sau locatie premium pentru evenimente private exclusiviste.
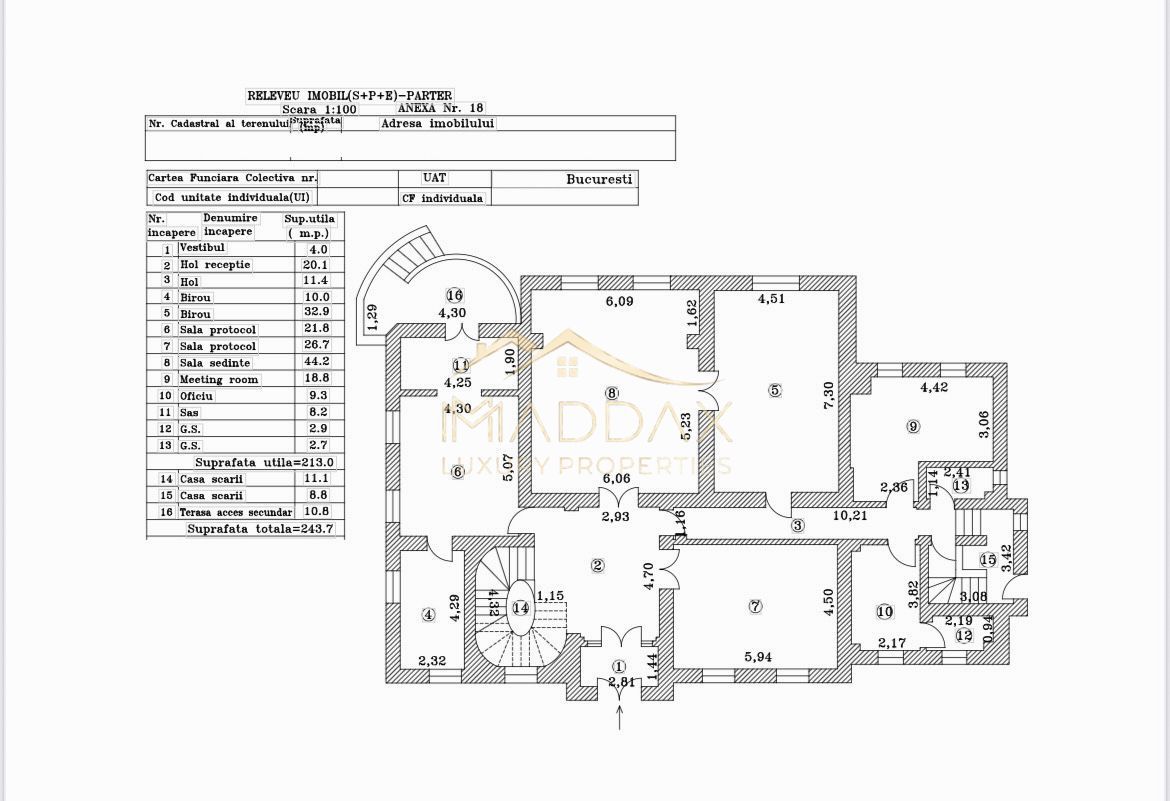
Proprietatea este dispusa pe 4 niveluri: demisol, parter, etaj si mansarda si ofera 18 camere spatioase (sali de protocol/birouri/sali pentru sedinte), elegante si luminoase, repartizate cate 6 pe fiecare nivel, 1 bucatarie, o chicineta si 5 bai. La demisol regasim birouri, camera tehnica, camera pentru server/IT, seif tezaur, precum si multiple spatii de depozitare. Mansarda vilei este un spatiu deschis, versatil, ideal pentru depozitare, fiind dotata cu detector de incendiu si hidrant ceea ce permite interventia rapida in caz de urgenta, asigurand siguranta conform cu standardele actuale.
Terasa generoasa de ~30 mp si curtea privata de 350 mp adauga valoare si intimitate spatiului.
Imobilul este complet renovat si imbina armonios farmecul interbelic cu functionalitatea moderna. Dispune de 3 cai de acces independente in cladire, oferind un flux functional excelent si un grad ridicat de confort.
Curtea privata permite parcarea a 6 masini, un atuu foarte important pentru clientii premium sau pentru birouri.
Pentru mai multe detalii, suntem aici pentru dumneavoastra,
Echipa MADDAX
Suprafata utila: 627MP
Suprafata construita: 714MP
An constructie: 1938
Nr. camere: 18
Nr. dormitoare:
Nr. bai: 5
Nr. bucatarii: 2
Nr. balcoane: 1
Locuri parcare: 6
Stadiu:
Finalizat
